Indeling object (in m² vvo)
De totaal verhuurbare vloeroppervlakte van het complex bedraagt ca. 6.378 m².
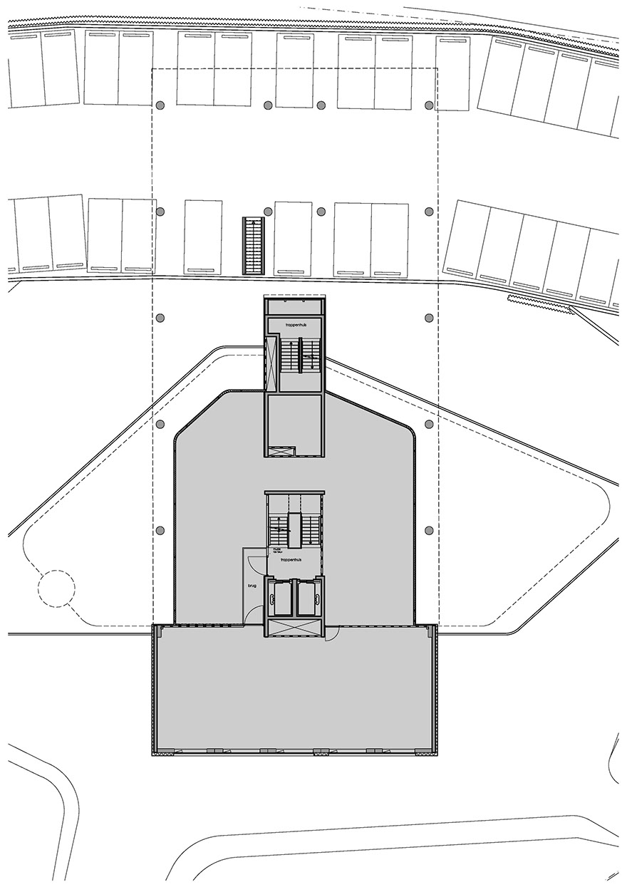
Parkeren
Er zijn ca. 180 parkeerplaatsen op het dubbele parkeerdek, waarvan 85 overdekt. Bezoekers en personeel kunnen vanuit het parkeerniveau 0 rechtstreeks en overdekt, de centrale ontvangsthal bereiken.
Opleveringsniveau
De kantoorruimtes zijn voorzien van een constructieve bouwvloer met afwerklaag, een systeemplafond met basisverlichting en een verwarming/klimaatsysteem (VRV/VRF systeem ten behoeve van ventilatie, verwarming en koeling). Per verdieping bevinden zich dames- en herentoiletgroepen en 2 liften.
Condities
Voor vragen, mail naar info@trencadis-venlo.nl.
Doorsnede
Doorsnede2
Begane grond
Eerste verdieping
<
>
Begane grond
Eerste verdieping, Kantoorruimte ca. 154m²
<
>